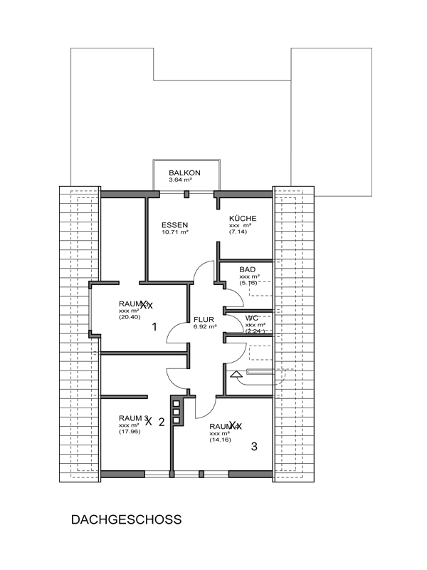
Dachgeschoss


Das gesamte Haus ist Ende 2017 kernsaniert worden und dabei mit dem modernsten Wlan-System versorgt worden. Alle Küchen beinhalten neben den üblichen Elektrogeräten Spülmaschinen. Im Haus sind Waschmaschinen (gebührenpflichtig) und Wäschetrockner vorhanden.

Gemeinschaftsfläche:

Inklusive:

Gartenmitbenutzung

Kleiner Balkon

Gemeinschaftsfläche:

Inklusive:

Gartenmitbenutzung

Kleiner Balkon

Gemeinschaftsfläche:

Inklusive:

Gartenmitbenutzung

Kleiner Balkon

Deine Mietanfrage

unverbindlich und schnell

Du kannst bisher kein passendes freien Zimmer finden?

Per E-Mail kannst du schnell und unverbindlich eine Mietanfrage bei uns stellen.

info-24alex301-jungeswohnende